ETUSIVU
ASUMINEN
RAKENNUSSUUNNITTELU
TIETOMALLIT
SISÄKUVAT
MAANKÄYTTÖ
SALONKATU, HYVINKÄÄ
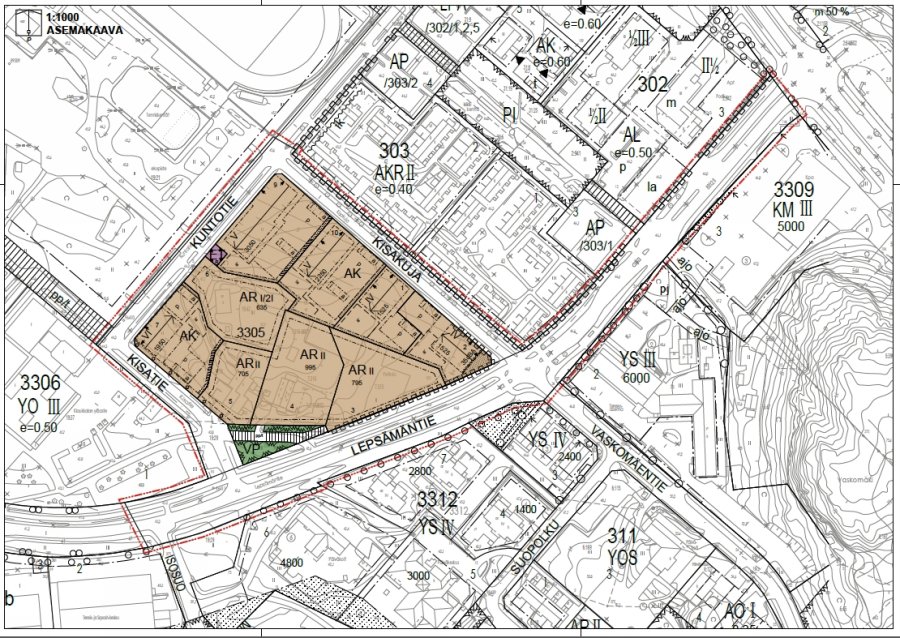
KISAKUJA, KLAUKKALA
VEKAN ALUE, HÄMEENLINNA
TILANTIEN ASEMAKAAVA, KLAUKKALA
REFERENSSIT
TAMPERE
KLAUKKALA, ASUNNOT
KLAUKKALA, KAAVOITUS
HÄMEENLINNA
NUMMELA
RIIHIMÄKI
GALLERIA
INTIA
KISAKUJAN ALUE
VEKAN ALUE
GALLERIA 1
GALLERIA 2
GALLERIA 3
SISUSTUS
FINNMASTER
MYLLYMÄEN VILLAT
RIIHIMÄEN PIIPPUKUJA
SAHANMAA
HÄMEENTIE
MESSUTALO PÄHKINÄ
YHTEYSTIEDOT
Kisakuja, Klaukkala
Kisakujan alue, Klaukkala, kaavamuutoksen visualisointeja
Kisakujan alue, näkymiä alueelta
Kisakujan asemakaavaehdotus, Klaukkala