FRONTPAGE
ASUMINEN
RAKENNUSSUUNNITTELU
TIETOMALLIT
SISUSTUSSUUNNITTELU
MAANKÄYTTÖ
SALONKATU, HYVINKÄÄ
KISAKUJA, KLAUKKALA
VEKAN ALUE, HÄMEENLINNA
TILANTIEN ASEMAKAAVA, KLAUKKALA
REFERENSSIT
KLAUKKALA
NUMMELA
RIIHIMÄKI
GALLERIA
GALLERIA 2
GALLERIA 3
SISUSTUS 1
FINNMASTER
MYLLYMÄEN VILLAT
RIIHIMÄEN PIIPPUKUJA
SAHANMAA
HÄMEENTIE
MESSUTALO PÄHKINÄ
YHTEYSTIEDOT
AJANKOHTAISTA
PARTNERIT
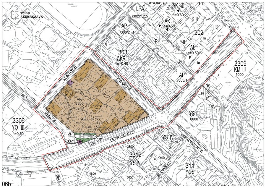
Kisakuja, Klaukkala
Kisakujan alue, Klaukkala, kaavamuutoksen visualisointeja
Kisakujan alue, näkymiä alueelta
Kisakujan asemakaavaehdotus, Klaukkala